Quadrilocale in vendita

Bari, Str. del Carmine - Borgo Antico
€ 398.000
4 locali 4 locali
161 Mq 161 Mq
2 bagni 2 bagni

Quadrilocale in vendita

Bari, Str. del Carmine - Borgo Antico

Descrizione annuncio

Elegante Appartamento in Storico Palazzo del 1650: Un Perfetto Incontro tra Storia e Modernità

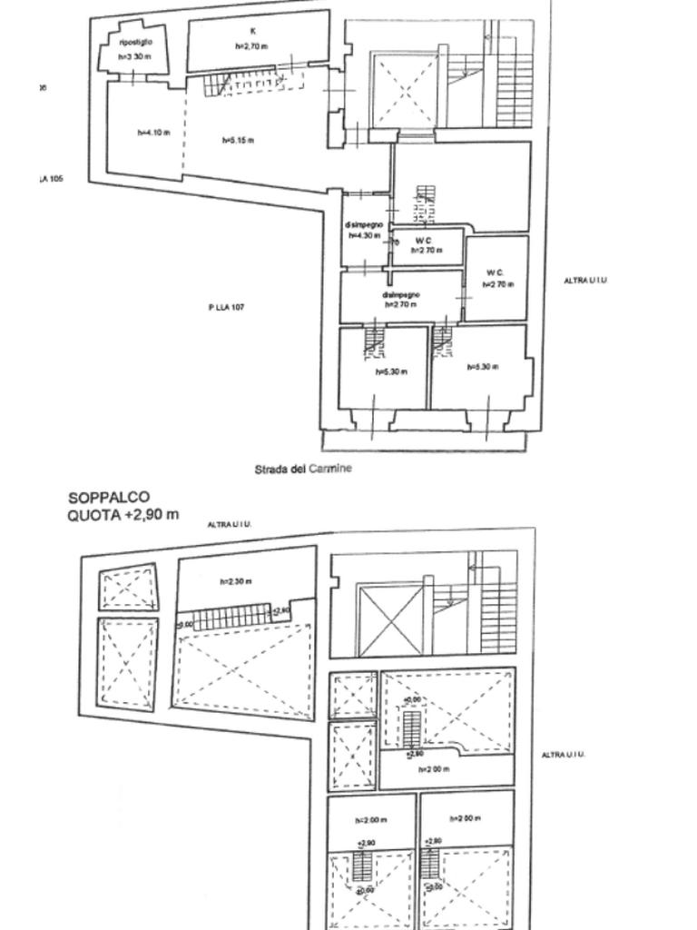
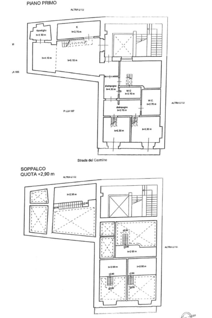
Proponiamo in vendita un raffinato appartamento di 161 mq risalente al 1650, che incarna un perfetto equilibrio tra eleganza storica e comfort contemporaneo. Oggetto di una recente e straordinaria ristrutturazione, l'immobile si distingue per l'accurata valorizzazione delle sue caratteristiche architettoniche originali, come le maestose volte alte e i rosoni che adornano gli spazi, simbolo del fascino del XVII secolo.

L'appartamento si sviluppa su un unico livello, con un ampio soggiorno luminoso, arricchito da una porta finestra che garantisce un'ottima illuminazione naturale. Adiacente al soggiorno, l'angolo cottura ben attrezzato è perfettamente integrato nell'ambiente, creando un'area conviviale e funzionale. La zona lavanderia, comoda e pratica, è accessibile direttamente dal soggiorno e comprende anche un ripostiglio ammezzato, che offre ulteriore spazio di archiviazione.

Dal soggiorno, comode scale conducono alla prima delle quattro zone soppalcate, che aggiungono un tocco di sofisticatezza e offrono spazio extra per personalizzare l'ambiente a seconda delle esigenze.

La prima camera da letto, caratterizzata da una finestra sull'interno, è impreziosita da volte alte e da un raffinato gioco di luci LED che esaltano il rosone, elemento distintivo dell'epoca XVII secolo. Anche questa stanza è dotata di un soppalco, che incrementa ulteriormente la versatilità dello spazio.

Proseguendo, troviamo il primo dei due bagni, un elegante ambiente con sanitari sospesi e un moderno box doccia multifunzione, ideale per il benessere quotidiano. Il corridoio conduce poi a due camere da letto di dimensioni simili, entrambe con affaccio sulla storica Via del Carmine. Anche in queste stanze si ripetono le suggestive volte alte e la presenza di soppalchi, che arricchiscono l'architettura dell'appartamento.

Infine, il bagno padronale, dotato di un ampio box doccia multifunzione e doppio lavabo, rappresenta un'oasi di comfort e raffinatezza.

La posizione dell'appartamento è altrettanto prestigiosa, con un balcone che offre una vista parziale sulla Cattedrale di San Sabino, un punto di vista esclusivo sulla bellezza della città. Lo stabile, che conserva intatto il suo fascino storico, si inserisce perfettamente nel contesto urbano, offrendo al contempo un rifugio tranquillo e riservato.

Un'opportunità imperdibile per chi desidera vivere in un ambiente che fonde perfettamente la storia con il lusso della modernità.

Stai pensando di vendere o affittare casa? Contattaci per una valutazione gratuita e senza impegno del tuo immobile.

Mostra tutto

Nelle vicinanze

Trasporto pubblico Trasporto pubblico
Bari Centrale (FAL)
Bari Centrale (FAL)
1,2 Km
stazione di Bari Centrale
stazione di Bari Centrale
1,2 Km
Navetta A
Navetta A
230 m
Trasporto pubblico
340 m
Ferry Terminal - Porto di Bari
410 m
Ricariche auto elettriche Ricariche auto elettriche
Eneldrive Parcheggio Piazzale Monsignor Michele Mincuzzi
160 m
Eneldrive Cavallo di Ceroli
380 m
Bari Teatro Petruzzelli | EnelX
690 m
Eneldrive Stazione Bari Centrale
1,2 Km
Eneldrive Punto Enel
1,4 Km
Scuole Scuole
Scuola elementare Corridoni
150 m
Tribunale Ecclesiastico Regionale Pugliese
180 m
SOS La Scuola Open Source
190 m
A.DI.S.U. Puglia
530 m
Scuole
550 m
Farmacia Farmacia
Melillo Francesco del Borgo Antico
90 m
Farmacia della Basilica
160 m
Salvemini
420 m
Farmacia Boccuzzi
490 m
Cea
510 m
Ospedali Ospedali
First Aid - university
1,0 Km
Policlinico di Bari
2,2 Km
ASL Bari
2,3 Km
Clinica Santa Maria
2,4 Km
Mater Dei
2,4 Km
Supermercati Supermercati
pasticceria mercantile
400 m
Simply Market
590 m
Supermercati Dok
810 m
Supermercato A & O
900 m
Stammibene
900 m
Negozi Negozi
La Delizie di Andrea
20 m
Green Crows
20 m
Leone
80 m
Negozi
90 m
Il regno di Peter Pan
90 m
Bar Bar
Cololla
20 m
De la Plaza
70 m
Cantina Meraviglie
80 m
Bar S. Giuseppe
250 m
Città vecchia
260 m
Ristoranti Ristoranti
Le Arpie
40 m
Mediterranea
90 m
Ristoranti
150 m
Osteria del Borgo Antico
210 m
Pizzeria Di Cosimo
230 m
Mostra tutto

Caratteristiche

Rif.:
61159705
Piano:
1 di 2 (Piano basso)
Balconi:
1
Camere da letto:
3
Arredamento:
Parziale
Condizionamento:
Autonomo
Mostra tutto
Prezzo Prezzo
€ 398.000
Rata mutuo Rata mutuo
€ 1.889 / mese
Spese annue Spese annue
€ 420
Proponi il tuo prezzoProponi il tuo prezzo

Classe Energetica

E
E
E
E
E
E
E
E
E
Anno di costruzione:
1650
Riscaldamento:
Autonomo
Tipo impianto:
A radiatori
Tipo alimentazione:
Metano

Ti interessa visionare l'immobile?

Fissa un appuntamento  Fissa un appuntamento

Richiedi informazioni

Clicca su Leggi per aprire l'informativa
* Questi campi sono obbligatori

Calcola il tuo mutuo

Semplice e senza impegno
Anticipo

( % )
Mutuo

( % )

pochi semplici passi

inserisci i tuoi dati
Questionario completato
Grazie per aver richiesto un appuntamento senza impegno con un nostro Consulente del Credito e Assicurativo.

Hai inserito correttamente tutti i dati necessari e a breve riceverai una e-mail con un link da convalidare per inviare i tuoi dati.
Affiliato
Re Capital Srl
Via De Rossi, 96 70122 Bari (BA)

Il nostro staff


  • Andrea Abatescianni
    Collaboratore

  • Michele Uccella
    Collaboratore

  • Andrea D’Aluiso
    Responsabile

  • Caterina Karin Guasco
    Coordinatrice
Via De Rossi, 96 70122 Bari (BA)
Zona: Bari-Murat-Borgo Antico
Mostra su mappa
Orari: Lunedì / Venerdì: 09.00-13.00 / 16.00 - 20.30 - Sabato: 09.00-13.00 - Domenica: Chiuso
Affiliato
Re Capital Srl
Via De Rossi, 96 70122 Bari (BA)

2026 Tecnocasa Franchising S.p.A. - P. IVA 08365160152 - Via Monte Bianco 60/A 20089 Rozzano (MI). Ogni agenzia ha un proprio titolare ed è autonoma. Privacy policy | Policy utilizzo | Cookie policy