Trilocale in vendita

Bari, Via Tripoli - Faro Di San Cataldo
€ 300.000
3 locali 3 locali
108 Mq 108 Mq
2 bagni 2 bagni

Trilocale in vendita

Bari, Via Tripoli - Faro Di San Cataldo

Descrizione annuncio

Tecnocasa Re Capital propone in vendita:

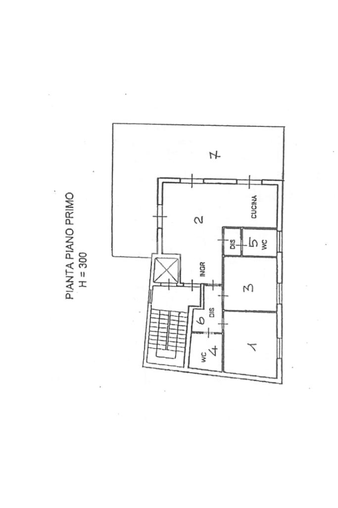
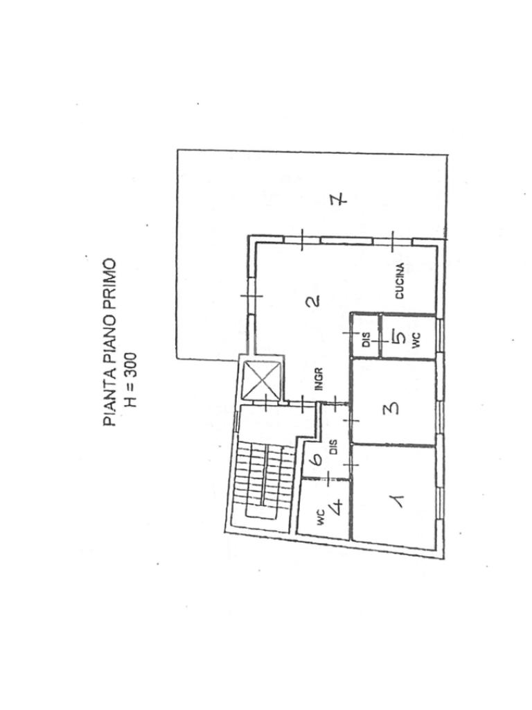
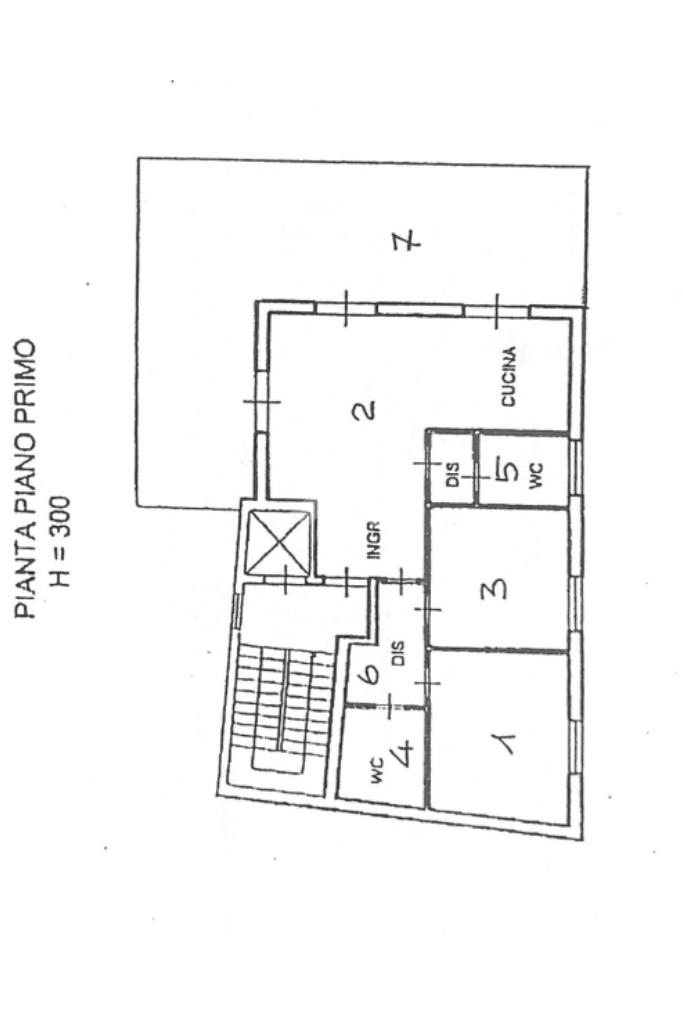
Nel cuore della suggestiva località di Faro di San Cataldo, a Bari, un appartamento di 100 mq, ideale per chi cerca una soluzione abitativa funzionale e ben collegata.

Situato al primo piano con ascensore, l'immobile offre spazi ben distribuiti, con due camere da letto accoglienti e due bagni, garantendo comfort e praticità. La zona giorno si apre su un ampio terrazzo con vista mare, perfetto per momenti di relax all'aperto.

Completano la proprietà un box auto coperto di 15 mq e un posto auto scoperto di 14 mq, assicurando comodità per il parcheggio.

Si tratta di un'opportunità interessante per chi desidera vivere in una zona tranquilla, ma ben servita.

Vi sono inoltre in progettazione dei lavori di riqualificazione della zona con la realizzazione di spiagge, del giardino del faro e di un’area verde, con la pedonalizzazione del lungomare Starita nel tratto prospiciente il faro di San Cataldo, inserita in un sistema di spazi pubblici pedonali/ciclopedonali e attrezzati per la sosta, sistemati in parte a verde e accessibili.

Per ulteriori informazioni, contattare il numero 3397238845.

Mostra tutto

Nelle vicinanze

Trasporto pubblico Trasporto pubblico
Francesco Crispi
Francesco Crispi
2,0 Km
Fesca-San Girolamo
Fesca-San Girolamo
2,1 Km
Trasporto pubblico
260 m
C.T.O. - Fiera
C.T.O. - Fiera
320 m
Bari
1,3 Km
Ricariche auto elettriche Ricariche auto elettriche
Eneldrive Fiera Del Levante
390 m
Eneldrive Arena della Vittoria
630 m
Bari Eataly | EnelX
920 m
Eneldrive Parcheggio Piazzale Monsignor Michele Mincuzzi
2,1 Km
Eneldrive Cavallo di Ceroli
2,3 Km
Scuole Scuole
Scuola Materna G. Marconi
210 m
Scuola Elementare di Stato Guglielmo Marconi
240 m
Scuola per Archivisti
990 m
Liceo classico Flacco
1,7 Km
A.DI.S.U. Puglia
1,9 Km
Farmacia Farmacia
Farmacia De Giglio
1,1 Km
Tempesta Dottor Arnaldo
1,3 Km
Ricciardiello
1,4 Km
Musicco
1,8 Km
Violante
1,8 Km
Ospedali Ospedali
ASL Bari
340 m
Ambulatorio medico - Croce Rossa Italiana
480 m
First Aid - university
2,8 Km
Mater Dei
3,0 Km
Supermercati Supermercati
punto spesa
160 m
MD Discount
1,2 Km
EuroSpin
1,6 Km
Di Meglio
1,6 Km
Supermercati Dok
1,8 Km
Negozi Negozi
L'arte della Focaccia
1,8 Km
Panificio Ricco
1,8 Km
Casa della frutta secca
1,8 Km
Il forno dei desideri
1,9 Km
Salumeria Capriati
2,1 Km
Bar Bar
Cimedit
170 m
Caffetteria Il Faro
190 m
Bar Gonella
250 m
Mistral Cafè
1,3 Km
L'altra caffetteria
1,3 Km
Ristoranti Ristoranti
Ristoranti
210 m
Pizzeria Provoletta conte
220 m
Pizzeria Santa Lucia
340 m
pizzeria
390 m
L'alchimia dei sapori
430 m
Mostra tutto

Caratteristiche

Rif.:
61159704
Piano:
1 di 5 con ascensore (Piano basso)
Box:
1
Posti auto:
1
Terrazzi:
1
Camere da letto:
2
Mostra tutto
Prezzo Prezzo
€ 300.000
Rata mutuo Rata mutuo
€ 1.414 / mese
Spese annue Spese annue
€ 948
Proponi il tuo prezzoProponi il tuo prezzo

Classe Energetica

E
E
E
E
E
E
E
E
E
EP globale non rinnovabile:
263.80 kW h/m² anno
EP globale rinnovabile:
263.80 kW h/m² anno
EP invernale del fabbricato:
EP estiva del fabbricato:
Anno di costruzione:
2007
Riscaldamento:
Autonomo
Tipo impianto:
A radiatori
Tipo alimentazione:
Metano

Ti interessa visionare l'immobile?

Fissa un appuntamento  Fissa un appuntamento

Richiedi informazioni

Clicca su Leggi per aprire l'informativa
* Questi campi sono obbligatori

Calcola il tuo mutuo

Semplice e senza impegno
Anticipo

( % )
Mutuo

( % )

pochi semplici passi

inserisci i tuoi dati
Questionario completato
Grazie per aver richiesto un appuntamento senza impegno con un nostro Consulente del Credito e Assicurativo.

Hai inserito correttamente tutti i dati necessari e a breve riceverai una e-mail con un link da convalidare per inviare i tuoi dati.
Affiliato
Re Capital Srl
Via De Rossi, 96 70122 Bari (BA)

Il nostro staff


  • Michele Uccella
    Collaboratore

  • Andrea D’Aluiso
    Responsabile

  • Caterina Karin Guasco
    Coordinatrice
Via De Rossi, 96 70122 Bari (BA)
Zona: Bari-Murat-Borgo Antico
Mostra su mappa
Orari: Lunedì / Venerdì: 09.00-13.00 / 16.00 - 20.30 - Sabato: 09.00-13.00 - Domenica: Chiuso
Affiliato
Re Capital Srl
Via De Rossi, 96 70122 Bari (BA)

2026 Tecnocasa Franchising S.p.A. - P. IVA 08365160152 - Via Monte Bianco 60/A 20089 Rozzano (MI). Ogni agenzia ha un proprio titolare ed è autonoma. Privacy policy | Policy utilizzo | Cookie policy