Bilocale in vendita

Bari, Arco del Carmine - Borgo Antico
€ 159.000
2 locali 2 locali
67 Mq 67 Mq
1 bagno 1 bagno

Bilocale in vendita

Bari, Arco del Carmine - Borgo Antico

Descrizione annuncio

Nel cuore del suggestivo Borgo Antico di Bari, tra la Cattedrale di san Sabino e la Basilica di san Nicola, più precisamente in strada Arco del Carmine, proponiamo in vendita un affascinante appartamento d'epoca.

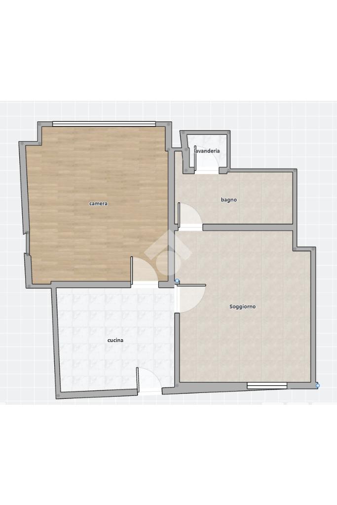
Situato al piano terra, l'immobile si estende su una superficie di 70 mq ca, offrendo un ambiente accogliente e funzionale.

La proprietà, risalente ai primi anni del '900, conserva il fascino storico tipico della zona, con dettagli architettonici caratteristici dell'epoca.

L'appartamento è composto da: una spaziosa camera da letto, una cucina abitabile e un soggiorno. Il bagno, ben progettato, compreso di lavanderia, completa la disposizione interna.

La posizione strategica nel Borgo Antico permette di vivere appieno l'atmosfera autentica di Bari, con la comodità di avere a portata di mano i principali servizi e le attrazioni culturali della città.

Perfetto sia per chi desidera immergersi nel fascino storico dell'antico borgo di Bari, che per chi desidera realizzare un investimento, trattandosi di un immobile con possibilità di frazionamento da cui poter ricavare ben due unità immobiliari.

Contattaci per ulteriori informazioni e per fissare una visita!

Stai pensando di vendere o affittare casa? Contattaci per una valutazione gratuita e senza impegno del tuo immobile.

Mostra tutto

Nelle vicinanze

Trasporto pubblico Trasporto pubblico
Bari Centrale (FAL)
Bari Centrale (FAL)
1,2 Km
stazione di Bari Centrale
stazione di Bari Centrale
1,2 Km
Navetta A
Navetta A
230 m
Trasporto pubblico
350 m
Ferry Terminal - Porto di Bari
430 m
Ricariche auto elettriche Ricariche auto elettriche
Eneldrive Parcheggio Piazzale Monsignor Michele Mincuzzi
160 m
Eneldrive Cavallo di Ceroli
370 m
Bari Teatro Petruzzelli | EnelX
680 m
Eneldrive Stazione Bari Centrale
1,2 Km
Eneldrive Punto Enel
1,4 Km
Scuole Scuole
Scuola elementare Corridoni
140 m
SOS La Scuola Open Source
180 m
Tribunale Ecclesiastico Regionale Pugliese
180 m
A.DI.S.U. Puglia
530 m
Scuole
550 m
Farmacia Farmacia
Melillo Francesco del Borgo Antico
100 m
Farmacia della Basilica
150 m
Salvemini
400 m
Farmacia Boccuzzi
480 m
Mostarda
500 m
Ospedali Ospedali
First Aid - university
1,0 Km
Policlinico di Bari
2,2 Km
ASL Bari
2,3 Km
Clinica Santa Maria
2,4 Km
Mater Dei
2,4 Km
Supermercati Supermercati
pasticceria mercantile
390 m
Simply Market
590 m
Supermercati Dok
800 m
Stammibene
890 m
Supermercato A & O
900 m
Negozi Negozi
La Delizie di Andrea
10 m
Green Crows
30 m
Negozi
80 m
Leone
90 m
Il regno di Peter Pan
100 m
Bar Bar
Cololla
30 m
De la Plaza
60 m
Cantina Meraviglie
70 m
Bar S. Giuseppe
240 m
Città vecchia
240 m
Ristoranti Ristoranti
Le Arpie
30 m
Mediterranea
100 m
Ristoranti
150 m
Osteria del Borgo Antico
190 m
La Uascezze
220 m
Mostra tutto

Caratteristiche

Rif.:
61121076
Piano:
Terra di 2
Totale piani:
2
Camere da letto:
1
Arredamento:
Assente
Condizionamento:
Assente
Mostra tutto
Prezzo Prezzo
€ 159.000
Rata mutuo Rata mutuo
€ 755 / mese
Spese annue Spese annue
€ 0
Proponi il tuo prezzoProponi il tuo prezzo

Classe Energetica

G
G
G
G
G
G
G
G
G
EP invernale del fabbricato:
EP estiva del fabbricato:
Anno di costruzione:
1940
Riscaldamento:
Assente

Ti interessa visionare l'immobile?

Fissa un appuntamento  Fissa un appuntamento

Richiedi informazioni

Clicca su Leggi per aprire l'informativa
* Questi campi sono obbligatori

Calcola il tuo mutuo

Semplice e senza impegno
Anticipo

( % )
Mutuo

( % )

pochi semplici passi

inserisci i tuoi dati
Questionario completato
Grazie per aver richiesto un appuntamento senza impegno con un nostro Consulente del Credito e Assicurativo.

Hai inserito correttamente tutti i dati necessari e a breve riceverai una e-mail con un link da convalidare per inviare i tuoi dati.
Affiliato
Re Capital Srl
Via De Rossi, 96 70122 Bari (BA)

Il nostro staff


  • Andrea Abatescianni
    Collaboratore

  • Michele Uccella
    Collaboratore

  • Andrea D’Aluiso
    Responsabile

  • Caterina Karin Guasco
    Coordinatrice
Via De Rossi, 96 70122 Bari (BA)
Zona: Bari-Murat-Borgo Antico
Mostra su mappa
Orari: Lunedì / Venerdì: 09.00-13.00 / 16.00 - 20.30 - Sabato: 09.00-13.00 - Domenica: Chiuso
Affiliato
Re Capital Srl
Via De Rossi, 96 70122 Bari (BA)

2026 Tecnocasa Franchising S.p.A. - P. IVA 08365160152 - Via Monte Bianco 60/A 20089 Rozzano (MI). Ogni agenzia ha un proprio titolare ed è autonoma. Privacy policy | Policy utilizzo | Cookie policy